裝修公司設計師意在為之創造一個優雅的且受歡迎的空間,引進一種極具個性化的西方與東方的融合風格,深圳裝修公司將意大利南部馬瑟西亞和東南亞國家的內部裝飾特點結合在一起。這個設計是根據主人的個性設計而來的,她是一位對旅行和咖啡有著愛好的且非常有品位的女士。
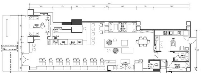
咖啡的店面是狹長型,并且底部的自然光線非常差,因此合理安排空間就成為了一種挑戰。深圳裝飾公司設計師師決定在底部最暗的地方設置一個會客室,通過應用大量的吊燈并以方形的竹子天花作為亮點,最終把最薄弱的地方變成了空間中的亮點。這樣,就可以讓顧客找到一個舒適的地方就座。
會客室設置在對外的大玻璃房內,設置在這里的意圖是為了給過路的人們展示一種咖啡的生活形態。在中國的這個地區,喝咖啡仍不是一個日常的生活習慣,而這里帶來一種櫥窗式購物的感覺,不僅能讓人們對咖啡文化進行了解,還能吸引他們走進咖啡館喝杯咖啡。